AtomInfo.Ru


В IGCAR изучили поведение натрия при аварии на PFBR

AtomInfo.Ru, ОПУБЛИКОВАНО 23.01.2022

Группа специалистов индийского центра атомных исследований (IGCAR) имени Индиры Ганди провела в 2021 году расчётно-экспериментальные исследования поведения натрия при гипотетической запроектной аварии на строящемся быстром натриевом реакторе PFBR.

Рассматривалась гипотетическая авария с разрушением активной зоны (hypothetical core disruptive accident, HCDA).

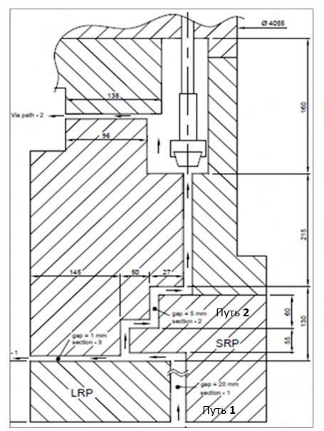
В условиях нормальной эксплуатации PFBR не предполагается попадание натрия первого контура в здание контейнмента (Reactor Containment Building, RCB).

Однако при аварии HCDA из-за отказа механических уплотнений натрий может просочиться в здание RCB через отверстия большой и малой поворотных пробок в верхней плите реактора (roof slab).

Так, через большую пробку теоретически может вытечь примерно 102 кг натрия (путь 1 на рисунке ниже). Вытекщий натрий может распространиться по площади до 75 м2.

Отверстия в верхней плите заполнены изоляционным материалом "Rockwool". Сверху они прикрыты пластиной из углеродистой стали.

Во время аварии HCDA выталкиваемый из главного корпуса реактора натрий взаимодействует с материалом изоляции, а также с кислородом. Энергия, выделяющаяся при сгорании натрия, может повышать температуру верхней плиты и приводит в конечном итоге к росту давления в здании RCB.

Поскольку сгорание радиоактивного натрия определяет количество и изотопный состав материала в выбросе (source term) в здании RCB, фактический прогноз количества выбрасываемого натрия и его сжигания очень важен для анализа последствий аварии HCDA.

Специалисты центра IGCAR выполнили ряд экспериментов на уменьшенной модели, имитирующей выход натрия первого контура при аварии HCDA. Площадь растекания натрия в модели составляла 1,13 м2.

Первая серия экспериментов была выполнена на воде. С её помощью было подобрано давление, необходимое для обеспечения нужного расхода натрия в следующих сериях экспериментов, а также определены позиции для установки термопар.

В следующих сериях экспериментов натрий в баке, имитировавшем корпус реактора, нагревался до 550°C, после чего в баке на протяжении 0,6 с создавалось давление 2,46 бар и происходило выдавливание порции натрия через моделируемый путь выхода в здание RCB. Изучалось влияние изоляции и других возможных параметров и конфигураций.

Вытекший натрий в эксперименте без изоляции

По итогам расчётно-экспериментальной программы индийские специалисты сформулировали благоприятные выводы для PFBR.

Прежде всего, они подтвердили, что натрий успеет значительно охладиться до попадания в здание RCB (самая высокая измеренная выходная температура натрия в экспериментах была 144°C).

Также они показали, что температуры и масса вытекшего натрия, измеренные в экспериментах, были всегда меньше расчётных значений. Следовательно, расчётные значения параметров при аварии HCDA, заложенные в обоснование безопасности реактора PFBR, консервативны, и это работает в запас безопасности.

"Во время аварии HCDA не ожидается значительного сжигания выбрасываемого натрия", - сформулировали в заключение своей работы индийские специалисты.

Ключевые слова: Быстрые натриевые реакторы, Азия, Индия, Статьи


Другие новости:

ТВЭЛ отгрузил в Китай оборудование для испытаний имитационной зоны быстрого реактора CFR-600

Машиностроительный завод изготовил 32 макета сборок СУЗ.

Китайский демонстрационный блок ВТГР подключён к сети

В работе реактор №1 блока.

На энергоблоке №1 АЭС "Руппур" началась сварка главного циркуляционного трубопровода

Сварка ГЦТ - одна из ключевых операций в строительстве энергоблока.

Герой дня

США - отказ для Авроры

США - отказ для Авроры

NRC прекратила рассмотрение заявки на получение комбинированной лицензии для микрореактора "Aurora". Компания-разработчик не скрывает своего разочарования, однако воздерживается от прямого ответа на вопрос, подаст ли она заявку повторно.



ИНТЕРВЬЮ

Нинель Мурогов

Нинель Мурогов
Теперь о самих виновниках торжества, о первых выпускниках послевоенной школы им. С.Т.Шацкого. Их не много, всего четыре ученика: Устинов Алексей (дер.Доброе), Ерохина Александра (пос.Обнинское), Преснова Валентина (дер.Пяткино), Мурогов Нинель (житель объекта).


МНЕНИЕ

AtomInfo.Ru

AtomInfo.Ru
В ноябре 2000 года компания TVO обратилась в правительство страны с просьбой дать принципиальное согласие на строительство пятого финского блока (FIN5). В январе 2002 года правительство такое согласие дало ("за" 10 голосов, "против" 6 голосов). В свою очередь, за согласие высказался и парламент Финляндии (24 мая 2002 года, "за" 109 голосов, "против" 92 голоса).


Поиск по сайту: