AtomInfo.Ru


Франция - от лодок к NUWARD, часть II

Владимир Рычин, AtomInfo.Ru, ОПУБЛИКОВАНО 17.11.2019


Первая часть - по этой ссылке.

В ходе 63-ей сессии генеральной конференции МАГАТЭ, прошедшей в Вене в сентябре 2019 года, профильные французские чиновники и топ-менеджеры с большой помпой объявили о начале работ по созданию французского реактора малой мощности NUWARD.

Участие в проекте компании "Technicatome" заставляет предположить, что NUWARD будет основываться на французских лодочных технологиях.

В предыдущей статье мы кратко рассмотрели историю развития лодочных реакторов во Франции, а теперь остановимся на предыдущей попытке французских атомщиков сделать на базе лодочного гражданский проект.

Объединение технологий

Для целей конверсии военных реакторных технологий в гражданские в компании "Technicatome" была разработана линейка проектов NP, наибольшую известность в которой получил проект NP-300. Его описание было включено в документ МАГАТЭ IAEA-TECDOC-1391, опубликованный в 2004 году.

Основная идея разработчиков серии NP - объединить технические решения лодочных реакторов и топливо для больших коммерческих PWR.

Компания "Technicatome" не собиралась ограничивать ролью конструкторов/проектантов, она была готова взять на себя обязанности генподрядчика при строительстве блоков с реакторами NP.

Срок службы блоков с NP - 50 лет. Мощность блока выбиралась из соображения конкурентоспособности с угольными и газовыми станциями, а также исходя из имевшихся на тот момент прогнозов развития электросетей. Выбранный таким образом диапазон мощностей - от 120 до 450 МВт(э).

Также в проект NP-300 исходно закладывалась возможность работать в манёвренном режиме, что безусловно важно для энергетики Франции.

NP-300 - основные параметры

Основные технические параметры проекта NP-300 приводятся в таблице ниже. Это двухпетлевой легководный реактор тепловой мощностью 1000 МВт(т) и электрической мощностью 314 МВт(э).

Активная зоны набирается из 97 квадратных кассет 17×17. Высота ТВС - 3,57 м. Внутренний диаметр корпуса реактора на уровне активной зоны - 3,3 м.

Основные параметры блока с NP-300.
Щёлкните левой клавишей мыши для просмотра.

Продолжение таблицы.
Щёлкните левой клавишей мыши для просмотра.

Реакторная установка

Главное, что в проекте NP-300 взято от лодок - концепция CAS. Каждый из парогенераторов связан с корпусом коротким соединительным участком. В свою очередь, ГЦНы интегральным образом (напрямую) соединены с парогенераторами.

Соединения "корпус-парогенератор" считаются безопасными в той же мере, как и сам корпус реактора, отказ этих соединений не рассматривается в расчётных обоснованиях безопасности.

Однако на случай течи меры всё-таки предусмотрены. Так, ограничителями течей могут служить установленные на соединительном участке внутренние сепараторы потоков.

Реакторная установка монтируется на единой нижней плите. Это обеспечивает конструкции в целом свободу (в заданных пределах для сохранения геометрии) для всех условий, включая землетрясения.

Компоновка РУ NP-300.
Щёлкните левой клавишей мыши для просмотра.

Активная зона

Основной вариант топлива для NP-300 - диоксид урана с обогащением ниже 5%. В качестве альтернативного рассматривается вариант работы на MOX-топливе.

Топливо - стандартное для французских PWR, за исключением высоты. Активная высота топлива является предметом оптимизации, возможны варианты от 2500 до 3000 мм.

Управление кластерного типа, в качестве выгорающих поглотителей могут выступать бор, гафний, гадолиний, эрбий, диспрозий. Применение борной кислоты для регулирования полностью не исключается, однако обставляется жёсткими требованиями и ограничениями.

Кампания реактора - от 18 до 24 месяцев. Перегружается треть активной зоны (вариант - четверть), остановы на перегрузку производятся в периоды сниженного энергопотребления.

Для уранового топлива обогащение подпитки составляет 4,5% при перегрузке трети активной зоны (для варианта с перегрузкой четверти зоны обогащение подпитки не приводится). Обогащение выгружаемого урана - 1,5%.

Средние выгорания - 33 ГВт×сут/т для перегрузки трети зоны и (потенциально) 44 ГВт×сут/т для перегрузки четверти зоны. Содержание 240Pu в выгружаемом плутонии - 20%.

По альтернативному варианту с MOX-топливом в документе МАГАТЭ данных практически не приводится, кроме упоминания о том, что он "гарантирует наличие минимальной доли плутония-240" на любой момент кампании. По всей видимости, это отсылка к нераспространенческим требованиям по защите плутония от переключения.

Отражатель в NP-300 - нержавеющая сталь. Привода СУЗ заимствованы из французского проекта N4. Узел хранения свежего топлива и бассейн выдержки оборудованы камерами, которые возможно использовать при проведении инспекций МАГАТЭ (это подтверждает предположение о том, что проект NP-300 рассматривался как пригодный к экспорту).

Организация перегрузок в NP-300.
Щёлкните левой клавишей мыши для просмотра.

Безопасность

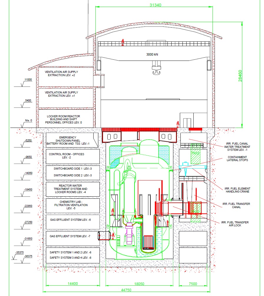
Для проекта NP-300 принято частично подземное расположение. В надземной части реакторного здания, помимо пропускников и административных помещений, располагаются мощный кран и часть системы вентиляции.

Подземная часть здания закрыта защитной плитой, которая рассчитывается на падение самолёта и на другие внешние опасности, в зависимости от условий на конкретных площадках.

Блок с NP-300.
Щёлкните левой клавишей мыши для просмотра.

Отвод тепла от контейнмента в аварийных ситуациях осуществляется в значительной степени за счёт большого объёма (озера) холодной воды (containment lake), расположенного выше контейнмента. Запас воды в этой системе легко пополняем извне.

Внутри контейнмента в верхней его части предусмотрен водный бак (upper contained water tank), физически разделённый на несколько частей. На куполе контейнмента отсутствует теплоизоляция, что позволяет охлаждать воду бака с помощью воды озера.

Также на случай потери работоспособности ГЦН внутри контейнмента организована схема охлаждения за счёт естественной циркуляции. Наконец, предусмотрена и активная система безопасности (safety injection system), физически разделённая на три канала.

Активная система безопасности.
Щёлкните левой клавишей мыши для просмотра.

Первый контур с системами безопасности.
Щёлкните левой клавишей мыши для просмотра.

Планы и применения

Проект NP-300 появился на свет в начале XXI века. Этап conceptual design был завершён в середине 2002 года, basic design планировалось закончить в июне 2004 года, а в июне 2005 года предполагалось сертифицировать проект у регуляторов.

Далее должен был произойти выход на потребителя, причём первому из них обешалось построить блок за 54 месяца.

Интересно отметить, что потребителей на NP-300 искали не только среди традиционных пользователей атомной энергии. Разработчики проекта считали, что NP-300 великолепно подходит для энергообеспечения технологических процессов по опреснению морской воды.

Лодочное наследие в NP-300 проявлялось не только в его компактной компоновке и соединении парогенераторов с корпусом и ГЦН. В компании "Tecnicatome" считали, что их детище может работать на барже, причём подобные баржи стали бы подходящими для снабжения морских буровых платформ.

Как мы теперь знаем, этим планам не было суждено сбыться. Вместо NP-300 французские атомщики сделали упор на реакторные гиганты EPR (и до сих пор не смогли пустить ни один блок с EPR в Европе).

Будет ли новая попытка французов обратиться к опыту лодочных технологий более успешной и что от проекта NP-300 может перенять NUWARD? На эту тему мы поговорим в следующей, заключительной статье.

Окончание следует.

Ключевые слова: История, Европа, Франция, Статьи, Владимир Рычин


Другие новости:

Иран и Россия начали строительство второй очереди АЭС "Бушер"

Торжественная церемония первого бетона на втором блоке прошла в воскресенье.

В Китае прошёл эксперимент по изучению течей воды в натрий

Эксперимент важен для разработки систем контроля малых течей.

МАГАТЭ обновило технический документ по отказам топлива в реакторах с водным охлаждением

Содержит данные за 2006-2015 годы.

Герой дня

В Вене отметили годовщину Первой в мире

В Вене отметили годовщину Первой в мире

Особый привет ветеранам-атомщикам прозвучал от ансамбля авторской песни мужского хора МИФИ - многократного лауреата российских и международных конкурсов.



ИНТЕРВЬЮ

Вадим Беркович

Вадим Беркович
Спасибо, но я хотел бы особо подчеркнуть, что моя награда - это, на самом деле, награда всему коллективу ОКБ "ГИДРОПРЕСС", во многом благодаря которому проект по сооружению второй очереди Тяньваньской АЭС был успешно реализован.


МНЕНИЕ

Владимир Рычин

Владимир Рычин
Альтернативным топливным материалом для космоса может стать НОУ или, точнее говоря, HALEU - уран с обогащением до 20%, всё ещё остающийся гражданским. К каким последствиям приведёт конверсия космических программ с ВОУ на НОУ?


Поиск по сайту: